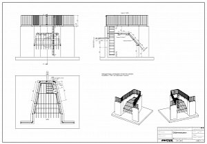
Für die Gemeinde Rickenbach durften wir für die Sanierung eines Einlaufbauwerkes den Stabrechen mit den Geländern und einer Steigleiter erstellen.
Mit Hilfe modernster CAD-Software sind wir in der Lage unsere Zeichnungen detailgetreu zu erstellen. Das erleichert die Besprechung mit Kunden. Auch können wir so Animationen und Simulationen erzeugen welche einfach zu verstehen sind und die weiteren Abklärungen deutlich vereinfachen.
